Top.Mail.Ru

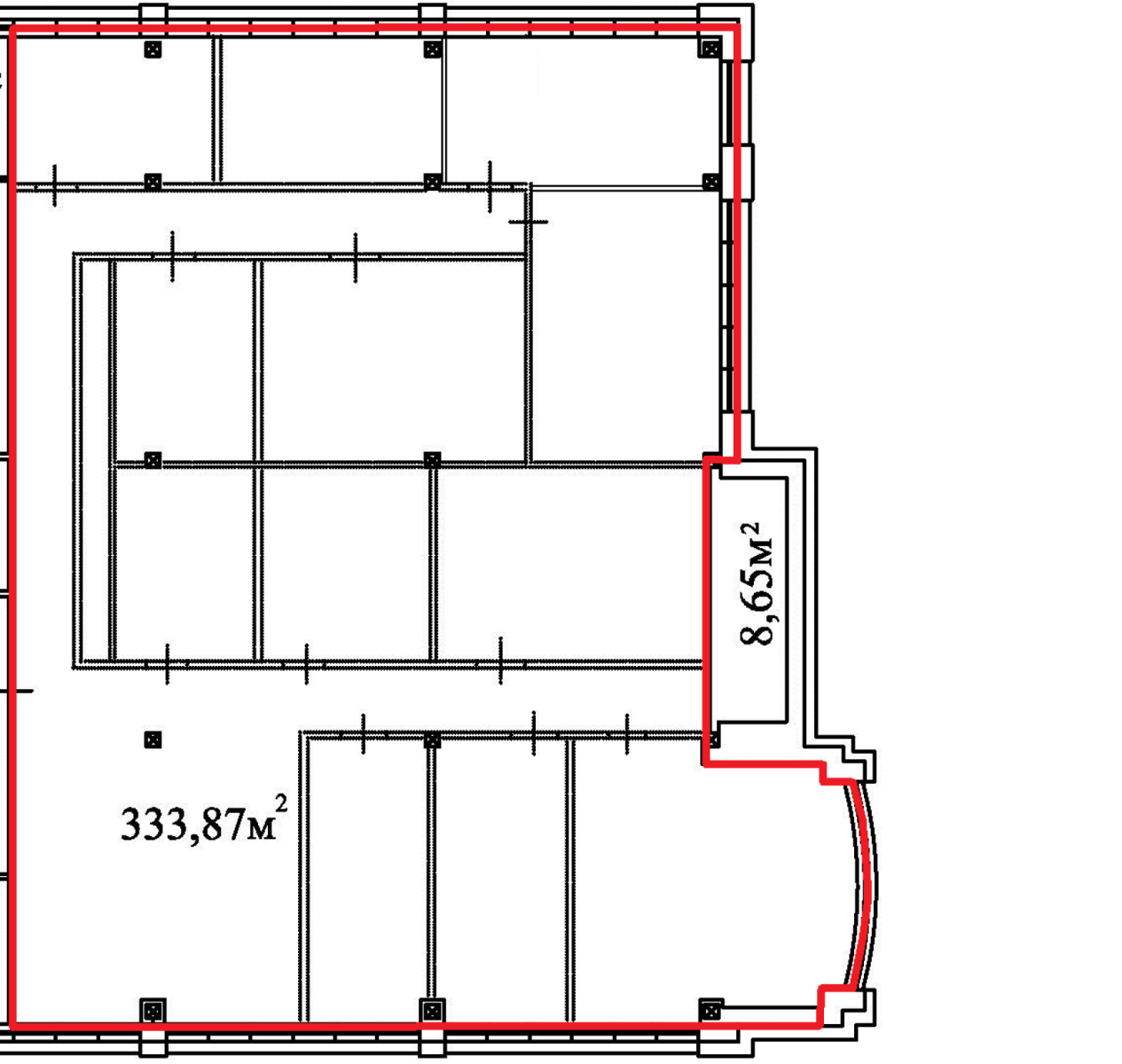
Офис 363,01 кв.м.

офис

20 Центральный Новь

Расположение
Бауманская, Красносельская
Этаж Корпус Площадь
2 20 Центральный Новь 363.01 м2
Оставить заявку
1 058 779 ₽/мес
35 000 ₽/м2

О помещении

Офис 363,01 кв.м.

Корпус 20, этаж 2
Арендуемая площадь: 363,01м²
Ставка: 35 000руб. за кв.м. в год вкл. НДС и КП

Ремонт: есть

  • Wi-Fi
  • Аренда от собственника

Другие предложения в корпусе

Контакты

Оставьте заявку или свяжитесь с нашим менеджером

+7(915) 451-87-01

+7(499) 753-09-09

WhatsApp

Оставить заявку
Аренда квартир